Loft ricavato da un ex laboratorio artigianale

Location
Prato
m2
120
Locale
Zona Giorno
Stile
Industrial

Partendo da un ex laboratorio artigianale, abbiamo sviluppato un progetto di ristrutturazione completa che ha dato vita a un restyling in autentico stile industrial.

Industrial chic incontra il comfort

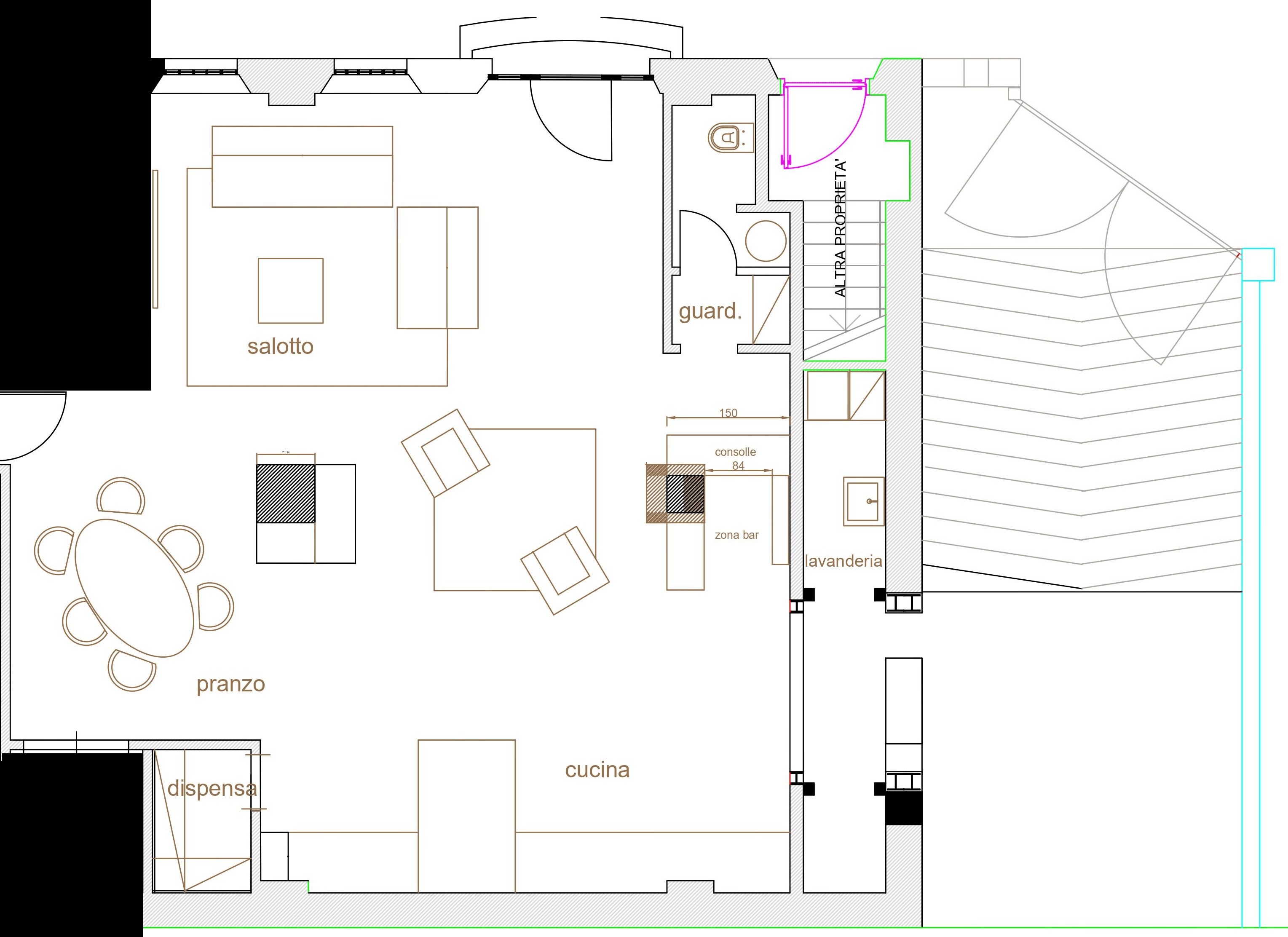
Il grande spazio giorno completamente aperto è stato suddiviso in aree tematiche. Il living, arredato con un grande divano angolare è stato inserito all'ingresso del loft, in corrispondenza delle grandi vetrate. Al centro dello spazio, si trova un pilastro che è stato sfruttato per inserire, allargandolo, un camino trifacciale di Piazzetta.
L'illuminazione è stata progettata utilizzando binari in sospensione Karman. Sempre di Karman è lo chandelier sopra al tavolo da pranzo
Le grandi finestre si affacciano su un cortile interno. Sono state integralmente sostituite mantenendo la configurazione originale, realizzate in acciaio e prodotte da Nurith.
La grande cucina occupa una intera parete ed è dotata di una penisola con piano cottura e cappa sospesa in acciaio.

Altri progetti residenziali

Contattaci

Via Francesco De Sanctis 8 Pistoia 51100, PT, Italia